Housing
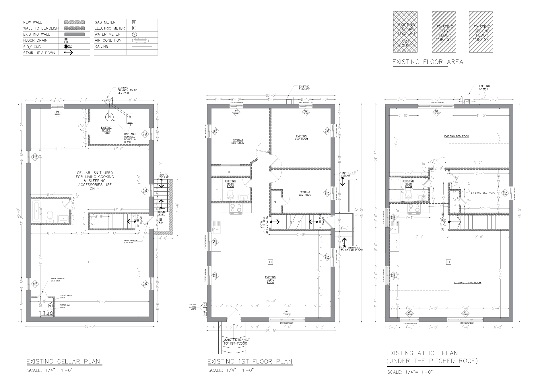
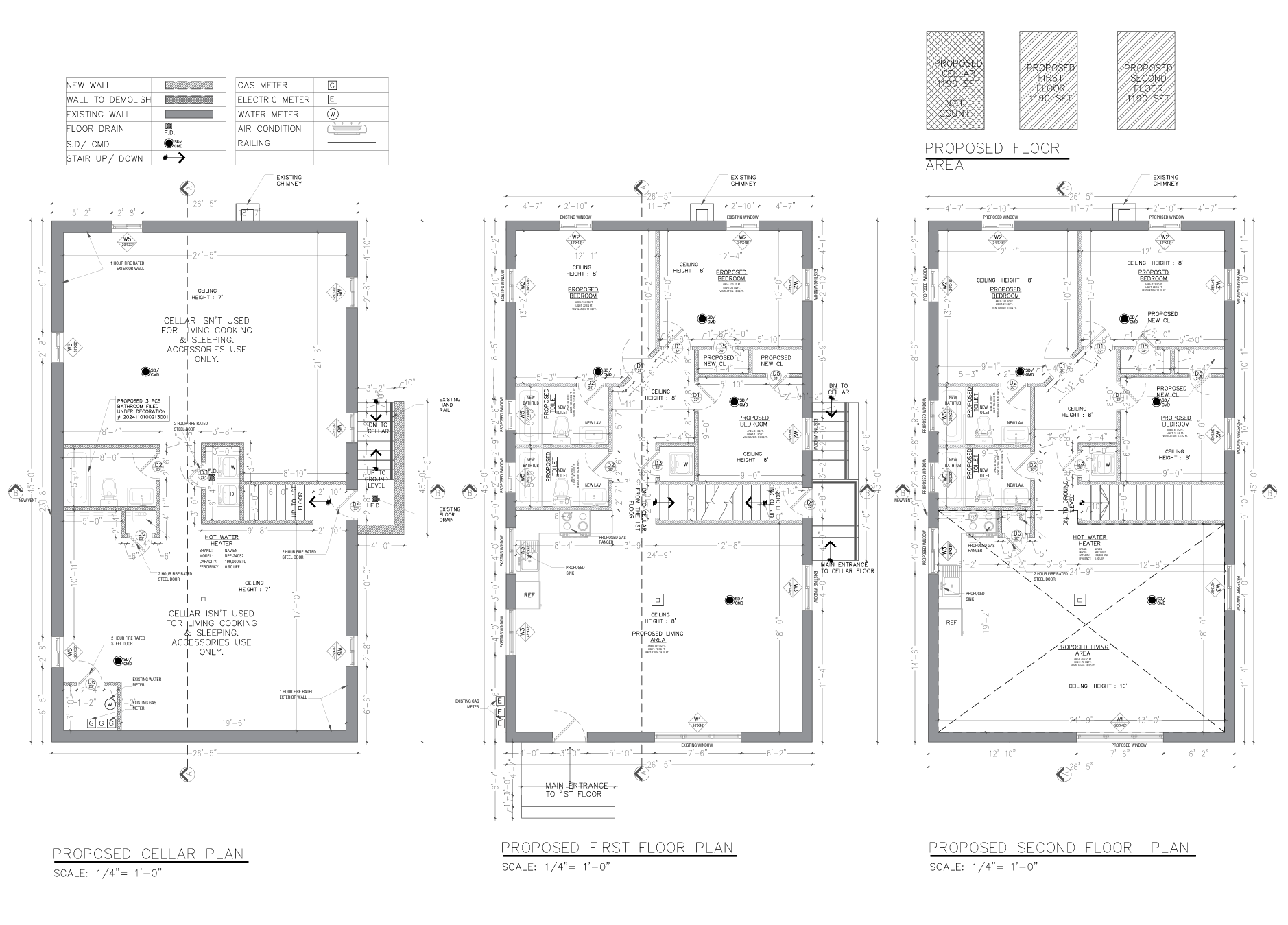
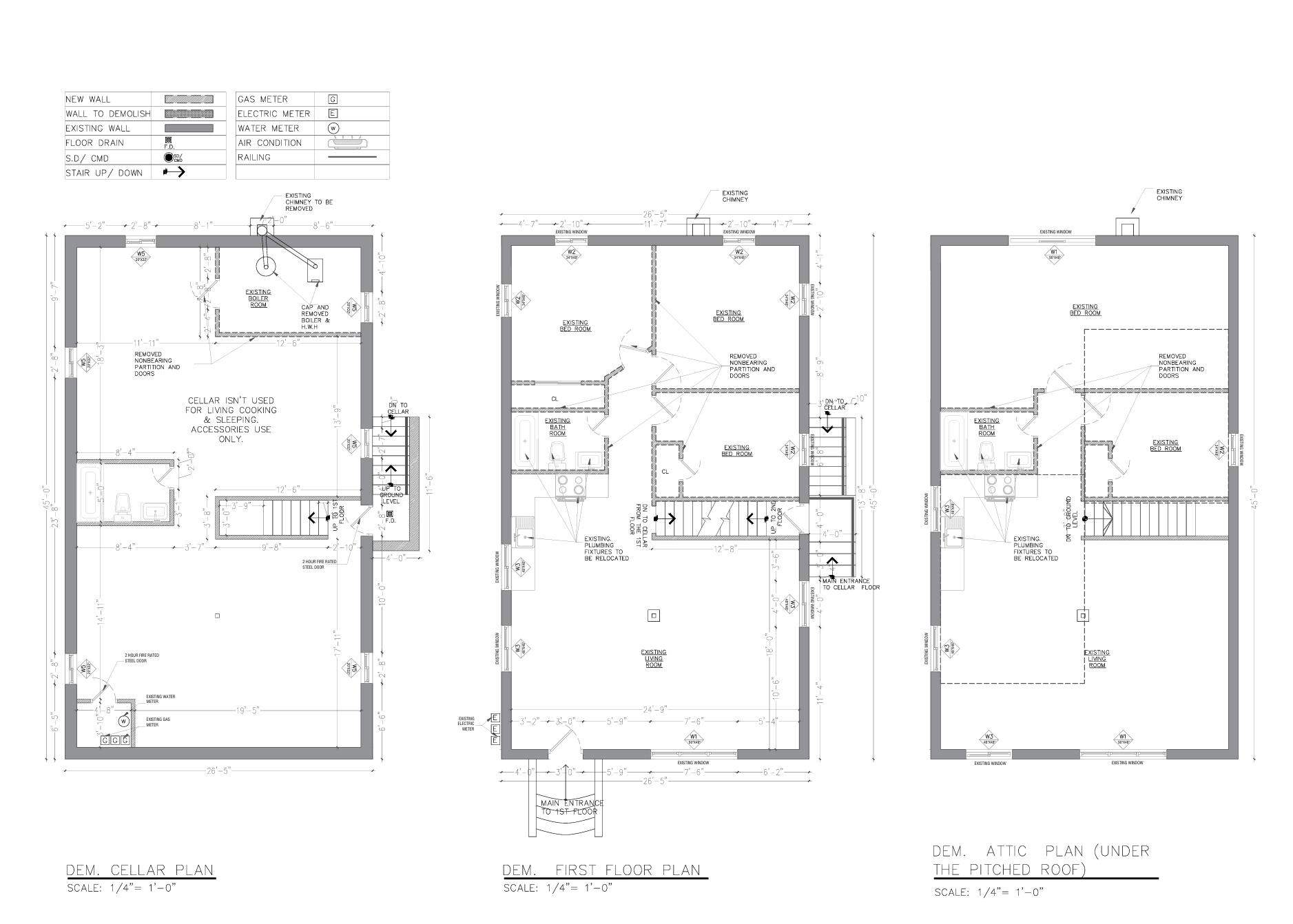
This project involves filing for both exterior and interior renovations to resolve existing violations and bring the property into full compliance. Additionally, the proposal includes converting the attic level into a habitable second floor, thereby expanding the building’s usable area while ensuring compliance with applicable building codes and zoning requirements.




